
03.03.26 –
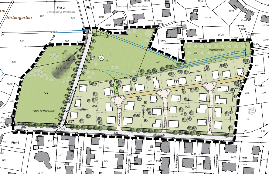
Im Bau- und Umweltausschuss am 26.02.2026 wurde die aktuelle Planung der Verwaltung für das Neubaugebiet „Auf der Hardt“ im Bereich Schulstraße/Wiehoffstraße vorgestellt. Der Entwurf wurde aus Kostengründen gegenüber früheren Planungen verändert. Sollte dieser in der Stadtverordnetenversammlung am 05.03. mehrheitliche Zustimmung erhalten, wird er zu einem konkreten Bebauungsplan weiterentwickelt.
Als Fraktion Bündnis 90 / Die Grünen stehen wir der Ausweisung eines weiteren Neubaugebiets grundsätzlich kritisch gegenüber. Unabhängig von dieser grundsätzlichen Haltung sehen wir auch beim konkreten Entwurf erheblichen Klärungsbedarf.
Unsere Bedenken:
Unsere Forderungen:
Um eine sachgerechte und transparente Entscheidung zu ermöglichen, fordern wir:
Wir stehen für eine nachhaltige, sozial gerechte und verkehrssichere Stadtentwicklung. Dazu gehört, Planungen sorgfältig abzuwägen, die Betroffenen einzubeziehen und langfristige Auswirkungen ehrlich zu bewerten.
Bild: Ausschnitt der öffentlichen Vorlage „Entwurfsunterlagen zum Bebauungsplan Nr. 8W“ (Stand 05.02.2026), verfügbar im Rats- und Informationssystem
Von der Ungleichheit der Löhne über Partnerschaftsgewalt bis zur ungleich verteilten Sorgearbeit: Die Gleichberechtigung zwischen Frauen und [...]
Die Bundesregierung und Regierungskoalition von CDU, CSU und SPD unter Bundeskanzler Friedrich Merz will das Gebäudeenergiegesetz reformieren. [...]
Auf ihrer Reise nach Israel und Palästina Anfang Februar traf unsere Bundesvorsitzende Franziska Brantner Vertreter*innen der Regierungen und [...]